A merecer a sua confiança… desde 1989
Idioma
Início
Quem Somos
Arrendamentos
Comprar/Vender/Arrendar
Empreendimentos
Contactos
Finalidade
Seleccionar
Arrendamento
Arrendamento férias
Cedência de posição
Compra
Permuta
Time-sharing
Trespasse
Tipo de imóvel
Seleccionar
Apartamentos
Comércio/Negócios
Moradias
Terrenos
Distrito:
Seleccionar
Porto
Concelho:
Seleccionar
Baião
Gondomar
Maia
Valongo
Vila Nova de Gaia
Freguesia:
Seleccionar
Baguim do Monte (Rio Tinto)
Fânzeres e São Pedro da Cova
Gondomar (São Cosme), Valbom e Jovim
Melres e Medas
Rio Tinto
Referência
procurar
... procurar por referência
Início
Detalhe de Imóvel
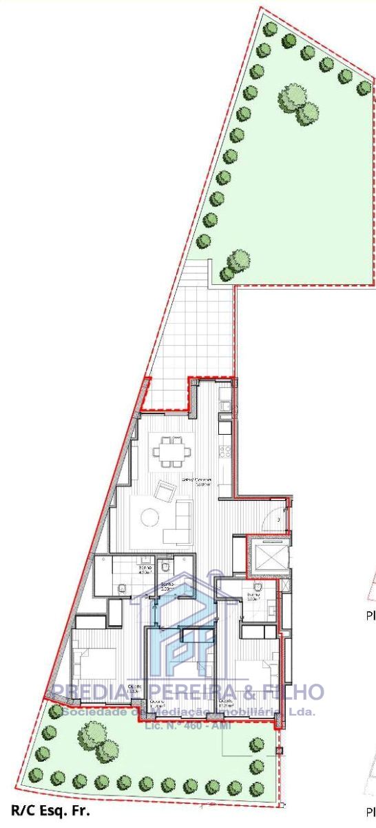
Apartamento T3 c/ terraço e jardim - Rio Tinto / Rebordãos
Rio Tinto, Gondomar (Porto)
395 000 €
Facebook
Twitter
Pinterest
Linkedin
Descrição
Rio Tinto / Rebordãos
Apartamento T3, num empreendimento com uma arquitetura moderna, privilegiando o conforto e acabamento de excelência.
Inserido num local servido por comércio e serviços, zonas verdes e servido por transportes. A 200m da Circunvalação, 900m do metro Levada/Rio Tinto, 1 KM do shopping Parque Nascente e a 900m dos bombeiros.
Composição do apartamento:
• Hall entrada com roupeiro
• Sala comum e cozinha em Open Space com 35m2
• Cozinha com móveis em hidrófugo cinza e portas MDF lacadas, com placa de indução, forno, micro-ondas, combinado, máquina lavar louça, máquina lavar roupa da "Bosch"
• Hall quartos
• Banho completo com móvel e base de chuveiro com resguardo
• Quarto com 11,40m2 com roupeiro
• 2 suites com 16,20m2 e 18,40m2, ambas com roupeiro, banho com móvel e base de chuveiro com resguardo.
• Terraço e jardim com 141,50m2
Lugar de garagem c/ 43,50m2
Acabamentos:
Pavimentos em vinil, paredes pintadas, caixilharia em alumínio c/ vidros duplos, persianas em alumínio elétricas, ar condicionado, vídeo porteiro, porta de segurança, bomba de calor, portas interiores lacadas a branco, focos led em toda habitação, portão automático c/ comando, sistema de contagem para carregamento de viaturas elétricas.
Para mais informações e marcação de visitas, contacte-nos:
PREDIAL PEREIRA & FILHO – Soc. Mediação de Imobiliária, Lda.
“A Merecer a sua Confiança, desde 1989”
Detalhes
Referência
T31586
Finalidade
Compra
Estado
Recuperado
Área bruta
157 m²
Área útil
113 m²
Áreas de quartos
11, 16, 18 m²
Quartos
3
Casas de banho
2
Garagens
1
Ano de construção
2025
Localização
Latitude:
/
Longitude:
Pedido de Informações
Nome:
E-mail:
Telefone:
Questões:
Sou o titular destes dados pessoais e autorizo a utilização dos mesmos para resposta a este pedido de informação.
(Para efetuar o pedido de informação é necessário marcar esta opção)
Autorizo a utilização destes dados pessoais para o envio de outra informação sobre imóveis. Em qualquer momento poderei cancelar essa autorização.
enviar
Características
Classificação Energética
Classificação:
Isento
;
Empreendimento
Elevadores
(1)
:
Normais:
1
;
Nº Pisos:
4
;
Exterior
Jardim
(1)
:
Exterior:
1
;
Orientação solar:
Nascente:
1
;
Poente:
1
;
Estado:
Novo:
1
;
Outros
Piso:
R/C:
1
;
Estacionamento
Lugar de garagem
(1)
:
Interior:
1
;
Nº de carros:
1
;
Área:
43.5
;
Portão de garagem:
Automático:
1
;
Climatização e conforto
Ar Condicionado:
Completo:
1
;
Aquecimento água:
Eléctrico:
1
;
Caixilharia:
Alumínio:
1
;
Vidros duplos:
1
;
Estores eléctricos:
1
;
Aquecimento Térmico:
Eléctrico:
1
;
Domótica e Segurança
Video-porteiro:
1
;
Porta de segurança:
1
;
Divisões
Quartos
(3)
:
Com WC (Suite):
2
;
Pavimento:
vinil
;
Acabamento das paredes:
pintadas
;
Tectos:
Tecto falso com focos:
1
;
Salas:
Área:
35
;
Pavimento:
vinil
;
Nº:
1
;
Acabamento das paredes:
pintadas
;
Tectos:
Tecto falso com focos:
1
;
Cozinha:
Microondas:
1
;
Exaustor:
1
;
Máquina lavar roupa:
1
;
Máquina lavar louça:
1
;
Pavimento:
vinil
;
Móveis:
Hidrofufgo+MDF
;
Placa e forno:
1
;
Combinado:
1
;
WC´s
(3)
:
Privados:
2
;
Completo:
1
;
Roupeiros
(4)
:
Roupeiros embutidos:
1
;
Terraço
(1)
:
Nº:
1
;
Área:
141.5
;
Enquadramento
Escolas:
1
;
Transportes públicos:
1
;
Supermercados e comércio:
1
;
Hospitais clínicas e farmácias:
1
;
Acessos:
Transportes públicos:
1
;
Localização:
Centro:
1
;
Serviços:
Centro Comercial:
1
;
Supermercados:
1
;
Bancos:
1
;
Farmácia:
1
;
Escolas:
1
;
Vistas:
Prédios:
1
;
Zona envolvente:
Residencial:
1
;
Comercial:
1
;
Recomendar Imóvel
Remetente
Destinatário